05. December 2025.
The City of Leskovac has once again reaffirmed its position as one of the region’s most efficient, transparent, and business-oriented local governments by obtaining the BFC SEE Certificate for the fourth time - this time completing the entire certification process in a record-setting five months. This remarkable achievement highlights Leskovac’s unwavering commitment to high standards, investor support, and continuous improvement of its business environment.
As the administrative, economic, cultural, and educational centre of the Jablanica District, Leskovac stands out for its exceptional strategic position. Key international transport routes connecting Western and Central Europe with the Balkans and Asia run through the city.

Leskovac’s economy is shaped by strong industrial tradition and dynamic development. The city has more than 1,000 registered companies and nearly 5,000 entrepreneurs, with stable growth across manufacturing, food production, wood processing, textiles, trade, transportation, and services. Agriculture remains a pillar of the local economy: with 58,764 hectares of highly fertile land, Leskovac has ideal conditions for intensive plant and livestock production. Additional support comes from the multifunctional “Barje” reservoir, ensuring water supply, flood protection, and future prospects for irrigation and energy generation.
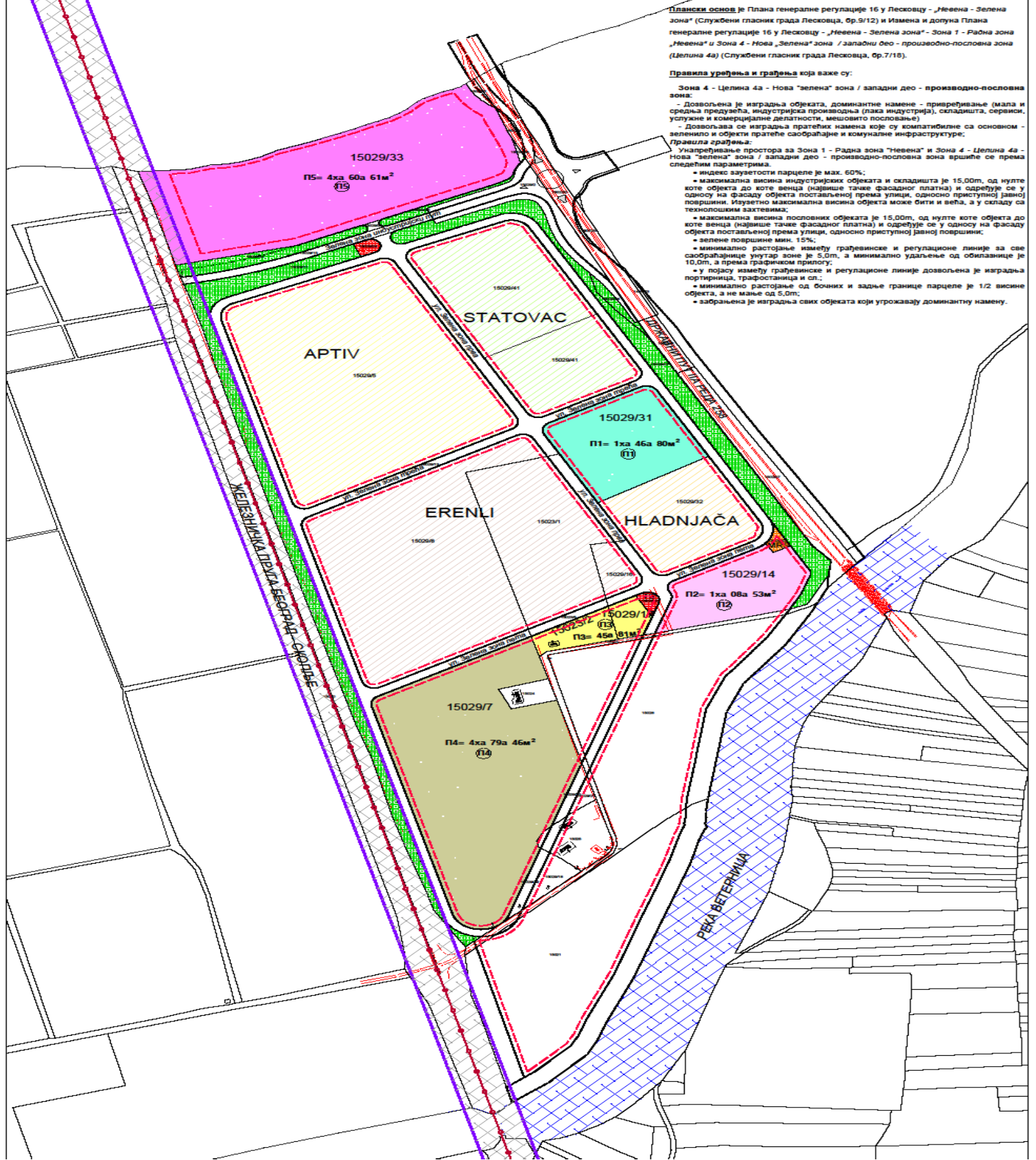
The city continues to strengthen its business infrastructure through strategic investments. The Northern Industrial Zone and the Green Zone (97 ha), tailored for food-processing and agribusiness, offer fully equipped land and a welcoming environment for investors. These zones already host major international companies such as Yura, Aptiv, Falke, Bonafarm, Terasteel and others, confirming Leskovac’s attractiveness as a competitive investment destination. One emblematic success story is an Italian investment worth €25 million that has created more than 5,300 jobs.

Leskovac’s proactive and transparent local administration is one of its greatest advantages. The Mayor and city departments maintain direct communication with businesses and investors through regular meetings, site visits, and swift problem-solving. This open approach, combined with fast and reliable administrative procedures, positions Leskovac as a national leader in efficient local governance.
Significant public investments further enhance the city’s competitiveness: major infrastructure projects such as new boulevards, the Leskovac–Vučje road, and the wastewater treatment plant (supported by an EU grant of €14.7 million) demonstrate the city’s commitment to long-term, sustainable development. Upcoming plans include a 50-hectare vegetable distribution centre, reinforcing Leskovac’s agricultural and food-processing strengths.

Recognized internationally as well, Leskovac was ranked first on the Financial Times list of “Cities of the Future” in 2024 and fourth in 2025, acknowledging its stable investment climate and strong development policies. Interest from new investors - including potential €14 million investments in the pharmaceutical sector - further confirms the city’s growing economic momentum.
By completing the BFC SEE certification process for the fourth time, Leskovac continues to set regional standards for excellence. Its strong infrastructure, investor-friendly administration, and diverse economic base make it a shining example of a city that not only keeps pace with modern development but actively leads it.
See what Leskovac is offering: https://novi.gradleskovac.org/